Продажа
Аренда
Новостройки
Подбор агента
Войти / Регистрация
Мой профиль
Подать объявление
Главная
Продажа квартиры
2 комн. в Алматы
Безопасность
Охрана
Домофон
Видеонаблюдение
Дополнительно
Пластиковые окна
Улучшенная
Комнаты изолированы
Тихий двор
Описание продавца
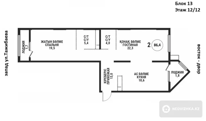
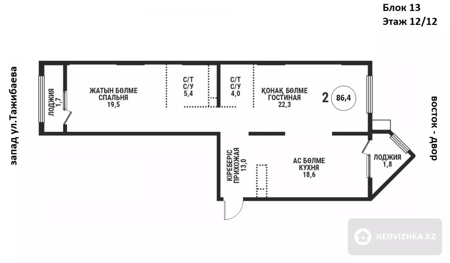
ЖК ESTET Застройщик BAZIS-А Дом бизнес класса Высокие потолки 3м Окна восток во двор и на запад на ул.Тажибаева
Местоположение на карте
В избранное
92 000 000 ₸
2-комнатная квартира, этаж 12 из 12, 86 м² в
Алматы, Бостандыкский р-н, Розыбакиева 217 - Ескараева, Жилой комплекс Estet
Пожаловаться на объявление
13 апр.
110 просмотров
Автор объявления:
Степанова Евгения
Агент компании ТАНАТАРОВ «COMFORT»
Документы подтверждены
1 отзыв
159 объявлений
Позвонить
Написать