Продажа
Аренда
Новостройки
Подбор агента
Войти / Регистрация
Мой профиль
Подать объявление
Главная
Продажа квартиры
3 комн. в Алматы
Безопасность
Охрана
Домофон
Видеонаблюдение
Дополнительно
Пластиковые окна
Улучшенная
Комнаты изолированы
Тихий двор
Описание продавца
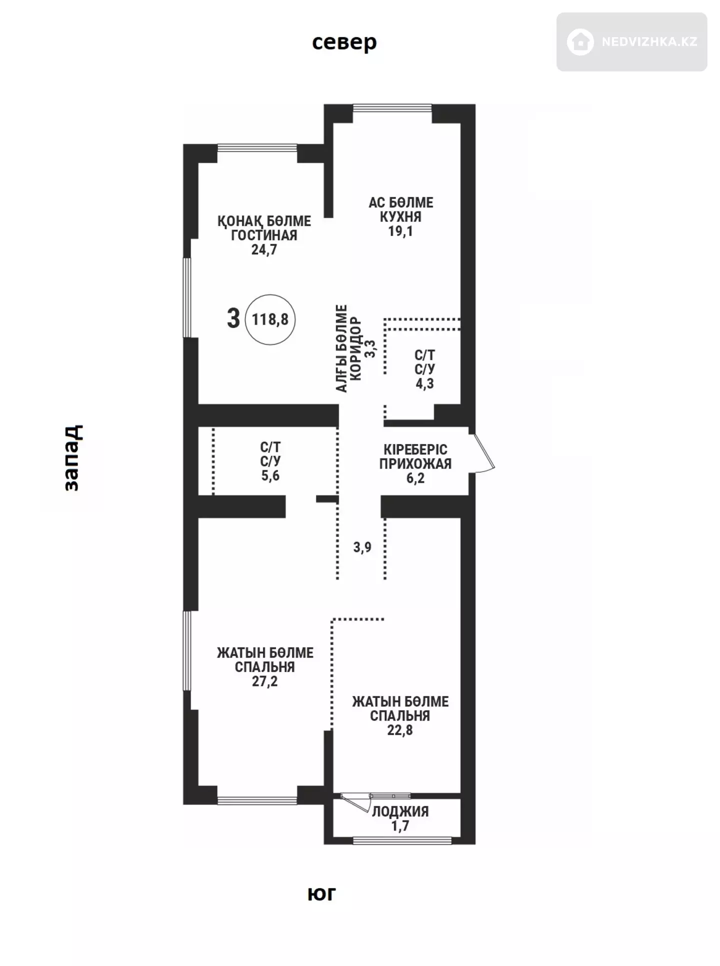
ЖК METROPOLE Дом бизнес класса Окна на юг запад север Видовая квартира Черновая отделка
Местоположение на карте
В избранное
115 000 000 ₸
3-комнатная квартира, этаж 16 из 19, 119 м² в
Алматы, Бостандыкский р-н, Аль-Фараби 41, Жилой комплекс METROPOLE
Пожаловаться на объявление
25 мар.
97 просмотров
Автор объявления:
Степанова Евгения
Агент компании ТАНАТАРОВ «COMFORT»
Документы подтверждены
1 отзыв
131 объявление
Позвонить
Написать