Безопасность

домофон

Дополнительно

тихий двор

Описание продавца

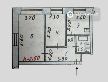
Отличная квартира в районе магазина «Радуга». Дом блочного типа, стены толстые. Рядом детские площадки, остановка, строительный магазин «Бакыт строй» в 2 минутах. В 5 минутах ходьбы - Центр Семейного здоровья (больница/СВА Макенбаева), Жезказганский политехнический колледж, Детский сад. Рядом с домом есть места для машин. Косметический ремонт. 2 окна из 3-х пластиковые. Ванная комната требует косметического ремонта. Бытовая техника и некоторая мебель в стоимость не входят. Площадь жилых комнат 17, 9 и 8, 5 м2

Местоположение на карте

5 янв.
84 просмотра

Продвижение объявления