Безопасность

охрана домофон видеонаблюдение

Дополнительно

пластиковые окна неугловая тихий двор кондиционер

Описание продавца

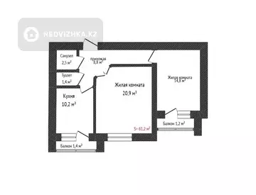
Продается 2-х комнатная квартира в самом центре Батыс-2: Застройщик «Актобе Саулет», дом кирпичный, 2015 г.п, 2/10 этаж; Площадь квартиры – 61,2 м кв. Кухня – 10,2 м кв; - Косметический ремонт, окна смотрят во двор, не угловая, своя котельная, 2 лифта (грузовой и пассажирский), видеонаблюдение, огороженный просторный двор. Частично меблирована. Локация очень удобная: рядом в шаговой доступности теннисный корт, НИШ, школа гимнастики, музыкальная школа, гипермаркет Дина, супермаркет Анвар, остановка от дома в двух минутах. С Уважением, специалист по недвижимости АН Этажи - Куаныш. 12089632

Местоположение на карте

22 окт.
48 просмотров

Продвижение объявления